Edinburgh House
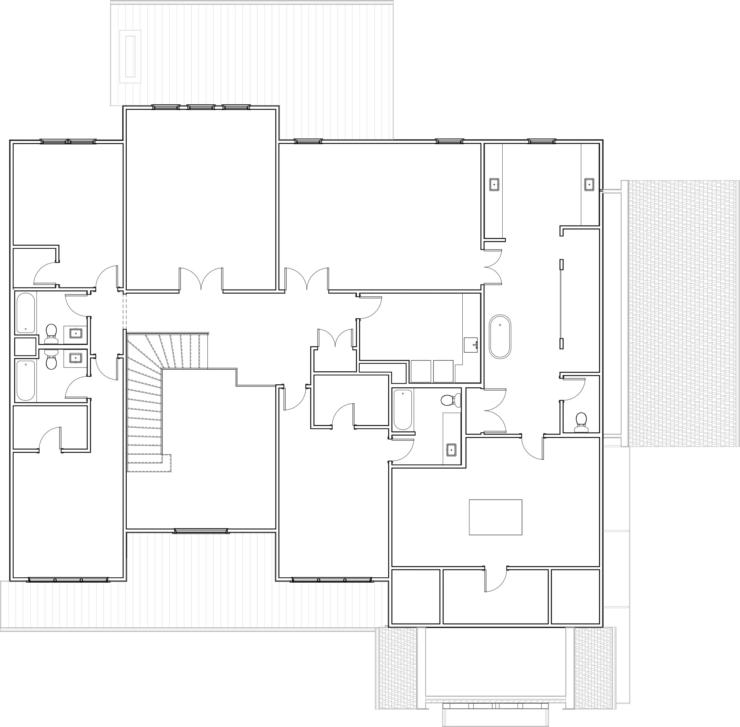
New construction single family home for residential client in Charlotte, NC. Solely responsible for all architectural work.
New construction single family home for residential client in Charlotte, NC. Solely responsible for all architectural work.